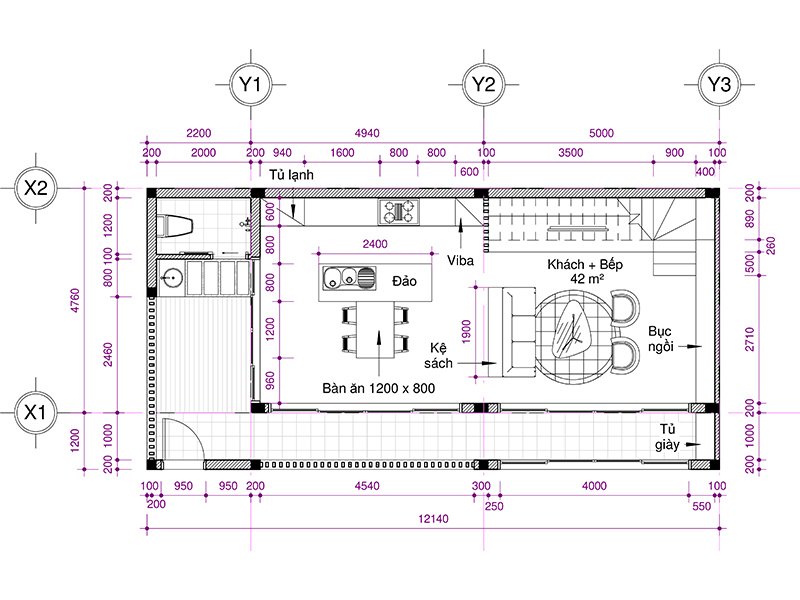
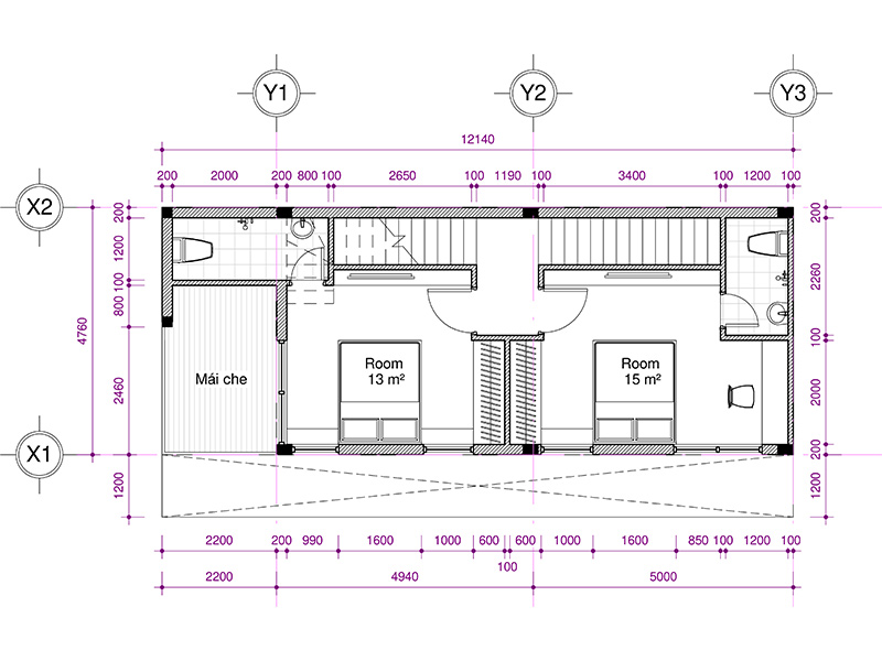
Dự án: Thi công trọn gói biệt thự
Hạng mục: Thi công trọn gói
Tổng diện tích: 187,5 m2
Thời gian: 5 tháng
Cam Kết Khi Xây Dựng Tại MKB Việt Nam
1. Bảo hành công trình 15 năm
Như một lời trao gửi yêu thương dành cho khách hàng, khi bạn chọn lựa MKB Việt Nam làm công ty xây dựng nhà trọn gói, chúng tôi sẽ bảo hành phần kết cấu công trình trong 20 năm (Quy định bảo hành chi tiết sẽ có tại phụ lục hợp đồng).
Đây chính là bảo chứng về chất lượng, sự an toàn, bền vững của công trình MKB Việt Nam mà không phải đơn vị nào cũng dám đứng ra cam kết.
2. Bảo dưỡng công trình trọn đời
Nhằm mang đến trải nghiệm tốt nhất cho gia chủ, xóa đi sự e ngại về chất lượng của công trình sau một thời gian dài sử dụng sẽ bị hư hỏng hoặc xuống cấp, không chỉ bảo hành 15năm mà MKB Việt Nam cam kết sẽ bảo dưỡng công trình trọn đời.
Bất cứ khi nào cần sửa chữa, bảo trì, hãy liên hệ đến MKB Việt Nam. Biệt đội bảo dưỡng sẽ luôn luôn đồng hành cùng bạn, giúp tổ ấm luôn an toàn và bền đẹp theo thời gian. Đây là cũng chính là sự đồng hành, chăm sóc dài lâu mà MKB Việt Nam muốn trao cho khách hàng của mình.
3. Vật liệu, vật tư xây dựng chính hãng, an toàn
Ngoài trình độ kỹ thuật cao, MKB Việt Nam sẽ sử dụng tất cả các vật tư có nguồn gốc rõ ràng; chính hãng để đảm bảo chất lượng công trình. Bởi, công trình có đẹp đến mức nào mà chất lượng không đảm bảo thì cũng chỉ là “con số không”.
Bên cạnh đảm bảo sự bền vững cho công trình, MKB Việt Nam còn lựa chọn những vật tư giúp công trình hòa hợp với môi trường và an toàn cho sức khỏe gia đình.
4. Không phát sinh phí trong quá trình xây dựng
MKB Việt Nam tiến hành khảo sát, tính toán kỹ lưỡng để đưa ra phương án thiết kế thi công hiệu quả nhất. Cam kết trong quá trình triển khai thực hiện sẽ không phát sinh thêm bất kỳ khoản chi phí ngoài ý muốn nào. Đồng thời, MKB Việt Nam sẽ tư vấn và thiết kế sao cho phù hợp nhất với ngân sách mà bạn mong muốn.
5. Đảm bảo đúng tiến độ cam kết
Làm việc nhanh chóng, hiệu quả và đúng tiến độ công trình là cam kết mà MKB Việt Nam rất chú trọng. Vì chúng tôi hiểu được rằng mọi gia chủ đều mong muốn được nhìn thấy “đứa con tinh thần” sớm nhất có thể.
6. Làm từ Tâm – Đạt đến Tầm
Dù là công trình nhỏ hay lớn, cải tạo hay xây dựng mới,… MKB Việt Nam đều lấy cái tâm để làm việc. Bằng việc tạo ra những công trình chất lượng, tính thẩm mỹ cao, bền vững và trường tồn theo thời gian, chúng tôi mong rằng có thể cống hiến thật nhiều “giá trị” tốt đẹp nhất cả về tinh thần lẫn vật chất cho khách hàng của mình.
Liên Hệ Xây Nhà Trọn Gói
Hotline : 0984.338.118
Văn Phòng: N 6-SH10, P. Hoàng Công, khu đô thị Mipec, Hà Đông, Hà Nội
Xưởng sản xuất: xóm 4- thôn Phúc Đức- xã Sài Sơn- huyện Quốc Oai- Hà Nội
Email: info@mkbvietnam.com.vn
