Thi Công Nhà Lô Phố 230m2 Trọn Gói

1.400.000.000

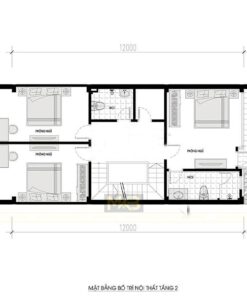
Diện tích: 223.5m2
Công năng: 1 phòng khách, 4 phòng ngủ, 1 phòng thờ, 1 phòng bếp, 1 phòng ăn, 3 WC
Thời gian hoàn thiện: 3 tháng 20 ngày
  • Miễn phí tư vấn thiết kế, thi công
  • Xưởng sản xuất nội thất giá hợp lý nhất
  • Bảo hành kết cấu 15 năm
  • Bảo hành chống thấm 5 năm
  • Bảo hành tổng thể công trình 1 năm